Gemeinde Vogt

Seitenbereiche

Hilfe

Volltextsuche

Seiteninhalt

Suche


3131 Treffer
  1. 2501. Bodenrichtwerte_01.01.2022.pdf  
    Dokumente & PDFs
    Bodenrichtwerte Vogt, zum Stichtag Gemeindeteil 01.01.2022 BRWArt der baulichen Nutzung Zonen-Nr. mit Bezeichnung der Bodenrichtwertzone BRW in €/m² 1 Gemischte Bauflächen (M) Ortsmitte 245,00 …  
  2. 2502. Bodenrichtwerte_31.12.2020.pdf  
    Dokumente & PDFs
    Bodenrichtwerte Vogt, zum Stichtag Gemeindeteil 31.12.2020 BRWArt der baulichen Nutzung Zonen-Nr. mit Bezeichnung der Bodenrichtwertzone BRW in €/m² 1 Gemischte Bauflächen (M) Ortsmitte 220,00 …  
  3. 2503. 2024_Mitteilungsblatt_KW29.pdf  
    Dokumente & PDFs
    66. Jahrgang Donnerstag, 18. Juli 2024 Nummer 29 Information Amtliche Bekanntmachungen Einladung zur öffentlichen Sitzung des Gemeinderats Informationen zur Gemeinderatssitzung am 26.07.2024 …  
  4. 2504. Anmeldeformular_und_Marktbedingungen_-_Adventsmarkt_2024.pdf  
    Dokumente & PDFs
    38. Vogter Adventsmarkt am 23. November 2024 Interessenten werden gebeten sich bis spätestens 13. September 2024 (gerne auch schon früher) bei der Gemeindeverwaltung Vogt, Kirchstraße 11 in 88267…  
  5. 2505. Stellenausschreibung_FSJ_Mullewapp_neu.pdf  
    Dokumente & PDFs
    Die Gemeinde Vogt sucht ab September 2024 einen Freiwilligen für ein Freiwilliges Soziales Jahr (FSJ) (m/w/d) Wir bieten hierfür einen Platz im Kinderhaus Mullewapp für die Dauer von bis zu zwölf…  
  6. 2506. Stellenausschreibung_KiGa_Mullewapp_UE3.pdf  
    Dokumente & PDFs
    Neue Herausforderung gesucht? Die Gemeinde Vogt sucht ab sofort für das Kinderhaus Mullewapp mit Waldgruppen zur Verstärkung des Teams im Ü3-Bereich (Wald und Haus) pädagogische Fachkräfte (m/w/d) in…  
  7. 2507. STADTRADELN  
    Statische Seiten
    Ergebnis Vogt       Die Zahlen im Überblick  
  8. 2508. Ergebnisse_Stadtradeln.pdf  
    Dokumente & PDFs
    Das STADTRADELN 2024 in Vogt Das STADTRADELN in Vogt liegt nun schon ein paar Wochen zurück. Die Ergebnisse wurden zwischenzeitlich ausgewertet und nachbereitet. Wir möchten uns noch einmal bei allen…  
  9. 2509. 2024_Mitteilungsblatt_KW28.pdf  
    Dokumente & PDFs
    66. Jahrgang Donnerstag, 11. Juli 2024 Nummer 28 12.-- 14. Juli 2024 12. Festzelt auf dem Le Mayet Platz Freitag, 12. Juli 2024 20:00 Uhr Bieranstich mit der Musikkapelle Vogt Samstag, 13. Juli…  
  10. 2510. 2024_Mitteilungsblatt_KW27.pdf  
    Dokumente & PDFs
    66. Jahrgang Donnerstag, 4. Juli 2024 Nummer 27 Einladung zum Fischerfest am Holzmühleweiher Der Fischereiverein Mosisgreut e.V. möchte alle Fischerfreunde zum diesjährigen Fischerfest am…  
  11. 2511. photo-corona - fotografie & grafik - Ramona Peglow  
    Geodaten & Objekte
    photo-corona - fotografie & grafik - Ramona Peglow

    Bewerbungsfotos, Paarfotos, Hochzeitsfoto, Brautpaarfotos, Babyfotos, biometrische Passbilder,  Businessportrait, Fine-Art-Fotodrucke,…  

  12. 2512. 2024_Mitteilungsblatt_KW26.pdf  
    Dokumente & PDFs
    66. Jahrgang Donnerstag, 27. Juni 2024 75 JAHRE 1949-2024 Happy Birthday SV VOGT M U Ä L I B U J DAS An allen Tagen EM Live zu sehen! Donnerstag 04.07. 18:00 Uhr: Begrüßung mit anschließenden…  
  13. 2513. 2024  
    Statische Seiten
    2024 zum Online-Portal  
  14. 2514. 2024-07-05_Stellenausschreibung_Leitung_Finanzverwaltung_Langform_04.07.2024.pdf  
    Dokumente & PDFs
    Die Gemeinde Vogt (ca. 4.700 Einwohner), Landkreis Ravensburg, sucht zum nächstmöglichen Zeitpunkt eine/n Leiter/in der Finanzverwaltung bzw. Kämmerer/Kämmerin (m/w/d) unbefristet in Voll- oder…  
  15. 2515. 2024_Mitteilungsblatt_KW25.pdf  
    Dokumente & PDFs
    66. Jahrgang Donnerstag, 20. Juni 2024 Nummer 25 Mitteilungsblatt Vogt Amtliche Bekanntmachungen Bekanntmachung des Satzungsbeschlusses zum Bebauungsplan „DamooserwegKüchel“ und die örtlichen…  
  16. 2516. 2024_Mitteilungsblatt_KW24.pdf  
    Dokumente & PDFs
    66. Jahrgang Donnerstag, 13. Juni 2024 Stadt/Gemeinde Landkreis Gemeinde Vogt Landkreis Ravensburg Nummer 24 Öffentliche Bekanntmachung des Ergebnisses der Wahl des Gemeinderats am 09.06.2024…  
  17. 2517. 2024-06-05_ZE_zum_BP_Damooserweg-Kuechel_u_OEBV.pdf  
    Dokumente & PDFs
    Zusammenfassende Erklärung zum Bebauungsplan "Damooserweg-Küchel" und die örtlichen Bauvorschriften hierzu Gemeinde Vogt Zusammenfassende Erklärung gem. § 10 a Abs. 1 BauGB zur Fassung vom…  
  18. 2518. 2024-06-14_Bkmg_SB_215a_BP_Damooserweg-Kuechel.pdf  
    Dokumente & PDFs
    Bekanntmachung des Satzungsbeschlusses zum Bebauungsplan "Damooserweg-Küchel" und die örtlichen Bauvorschriften hierzu Der Gemeinderat der Gemeinde Vogt hat am 12.06.2024 für das Gebiet östlich des…  
  19. 2519. Impressum  
    Statische Seiten
    Impressum Inhalt & Betrieb Bürgermeisteramt Vogt (Website-Betreiber) Bürgermeister Peter Smigoc Kirchstraße 11 88267 Vogt Fon: 07529 209-0 Fax: 07529 209-24 info(@)gemeinde-vogt.de Die…  
  20. 2520. 2024_Mitteilungsblatt_KW23.pdf  
    Dokumente & PDFs
    66. Jahrgang Donnerstag, 6. Juni 2024 Nummer 23 WAHLAUFRUF EUROPA- UND KOMMUNALWAHLEN AM 09. JUNI 2024 Liebe Bürgerinnen und Bürger, am kommenden Sonntag, 09. Juni 2024 finden die Europa- und…  
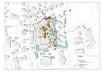
  21. 2521. 2024-06-14_Lageplan_3-2_215a_Damooserweg.pdf  
    Dokumente & PDFs
     
  22. 2522. 2024-06-05_TEXT_Damooserweg-Kuechel_Vogt_endg.pdf  
    Dokumente & PDFs
    Bebauungsplan "Damooserweg-Küchel" und die örtlichen Bauvorschriften hierzu Gemeinde Vogt Fassung 05.06.2024 Sieber Consult www.sieberconsult.eu Inhaltsverzeichnis Seite 1 Rechtsgrundlagen 3 2…  
  23. 2523. 2024-06-05_PLAN_Damooserweg-Kuechel_Vogt_endg.pdf  
    Dokumente & PDFs
     
  24. 2524. 2024-06-05_UB_und_EAB_Damooserweg-Kuechel_endg_Umweltbericht.pdf  
    Dokumente & PDFs
    Gemeinde Vogt Bebauungsplan "Damooserweg-Küchel" und die örtlichen Bauvorschriften hierzu Umweltbericht und Abarbeitung der Eingriffsregelung Fassung 05.06.2024 Sieber Consult GmbH…  
  25. 2525. 2024-04-26_Fachbeitrag_Kiebitz_Vogt_Damooser_Weg_erg_Artenschutz.pdf  
    Dokumente & PDFs
    Gemeinde Vogt Bebauungsplan "Damooser Weg-Küchel" Sieber Consult GmbH, Lindau (B) Datum: 26.04.2024, ergänzt am 03.06.2024 Fachbeitrag Artenschutz – Kiebitz 1. Allgemeines 1.1 Die Gemeinde Vogt…  
  26. 2526. 2024-06-12_FNPber_BP_Damooserweg-Kuechel.pdf  
    Dokumente & PDFs
     
  27. 2527. Handballclub-Landjugend  
    Geodaten & Objekte
    Handballclub-Landjugend

    Vorstand: Christopf Mägerle

     
  28. 2528. SC VOGT e.V.  
    Geodaten & Objekte
    SC VOGT e.V.

    Vorstand: Uschi Riegger

     
  29. 2529. Notrufe  
    Statische Seiten
    Notrufe Notrufnummer: 116117 Den ärztlichen Bereitschaftsdienst an Werktagen von 18.00 - 08.00 Uhr sowie am Wochenende und an Feiertagen erreichen Sie unter der zentralen Notrufnummer: 116117 …  
  30. 2530. Jugend  
    Statische Seiten
    Jugend Jugendeinrichtungen an der Grund- und Hauptschule mit Werkrealschule Vogt Schulstraße 21 88267 Vogt Fon: 07529 6186 Sekretariat: Frau Carmen Waizenegger Schulsozialarbeiterin und Kinder-…  
  31. 2531. 2024_Mitteilungsblatt_KW21.pdf  
    Dokumente & PDFs
    66. Jahrgang Donnerstag, 23. Mai 2024 STADTRADELN Nummer 21 2024 Auf die Räder, fertig, los! - ab dem 8. Juni 2024 tritt ganz Vogt in die Pedale! Im Zeitraum vom 8. Juni bis 28. Juni 2024…  
  32. 2532. 2024_Mitteilungsblatt_KW22.pdf  
    Dokumente & PDFs
    66. Jahrgang Mittwoch, 29. Mai 2024 Nummer 22 STADTRADELN 2024 Auf die Räder, fertig, los! - ab dem 8. Juni 2024 tritt ganz Vogt in die Pedale! Im Zeitraum vom 8. Juni bis 28. Juni 2024 tritt…  
  33. 2533. Zahlen & Daten  
    Statische Seiten
    Übersicht Bevölkerungsstand Einwohnerzahl: ca. 4 600 Gemarkungsfläche: 2 231 ha Davon Siedlungs- und Verkehrsfläche: 223 ha Gebäude- und Freifläche: 145 ha Erholungsfläche: 8 ha Verkehrsfläche:…  
  34. 2534. 2024_Mitteilungsblatt_KW20.pdf  
    Dokumente & PDFs
    66. Jahrgang Donnerstag, 16. Mai 2024 Vorgezogener Redaktionsschluss Sehr geehrte Autoren, aufgrund des kommenden Feiertages wird folgender Redaktionsschluss vorgezogen: Veröffentlichung:…  
  35. 2535. Dienstleistungen  
    Statische Seiten
    Dienstleistungen In diesem Bereich finden Sie zahlreiche typische Dienstleistungen einer Verwaltung, um Sie bereits im Vorfeld Ihres Behördengangs zu informieren und Ihnen den Besuch im Rathaus zu…  
  36. 2536. Gewerbe-Abmeldung.pdf  
    Dokumente & PDFs
     
  37. 2537. Le_Mayet_Jubilaeum.pdf  
    Dokumente & PDFs
    Partnerschaft / Jumelage Vogt - Le Mayet Feier zum 30-jährigen Jubiläum der Partnerschaft Zeitgleich mit dem Eintreffen unserer 32 französischen Gäste aus Le Mayet riss an Himmelfahrt der seit Tagen…  
  38. 2538. 2024_Mitteilungsblatt_KW19.pdf  
    Dokumente & PDFs
    66. Jahrgang Mittwoch, 8. Mai 2024 Nummer 19 Partnerschaft Jumélage Vogt-Le Mayet Wir feiern 30-jähriges Jubiläum! Wir freuen uns sehr in diesem Jahr das 30-jährige Bestehen unserer…  
  39. 2539. 2024_Mitteilungsblatt_KW18.pdf  
    Dokumente & PDFs
    66. Jahrgang Donnerstag, 2. Mai 2024 Nummer 18 Mitteilungsblatt Vogt 2 Nr. 18 vom 2. Mai 2024 Stadtradeln 2024 Auf die Räder, fertig, los! – ab dem 8. Juni 2024 tritt ganz Vogt in die…  
  40. 2540. 04_2024-04-09_vBPFNPae_Oberhof_1_in_Oppenreute_DFK.pdf  
    Dokumente & PDFs
    Gar 26 153/13 15 3 / Projektbezogene Angaben und Fragestellungen zum 153/14 vorhabenbezogenen Bebauungsplan und Änderung des Flächennutzungsplanes "Oberhof 1, in Oppenreute" Gemeinde Wolfegg…  
  41. 2541. 05_2024-04-09_vBPFNPae_Oberhof_1_in_Oppenreute_Beschreibung.pdf  
    Dokumente & PDFs
    Sieber Consult GmbH | Am Schönbühl 1 | 88131 Lindau (B) Vorhabenbezogener Bebauungsplan "Oberhof 1, in Oppenreute" und die örtlichen Bauvorschriften hierzu sowie Änderung des Flächennutzungsplanes…  
  42. 2542. 02_2024-04-09_vBPFNPae_Oberhof_1_in_Oppenreute_Luftbild.pdf  
    Dokumente & PDFs
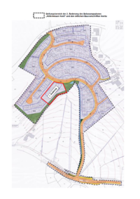
    Stadtplanung Artenschutz Immissionsschutz N voraussichtlicher Geltungsbereich L3 Gemeinde Wolfegg Vorhabenbezogener Bebauungsplan "Oberhof 1, in Oppenreute" sowie Änderung des…  
  43. 2543. 05_2024-04-09_vBPFNPae_Oberhof_1_in_Oppenreute_Bauvorhaben.pdf  
    Dokumente & PDFs
    Stadtplanung Artenschutz Immissionsschutz Landschaftsplanung N voraussichtlicher Geltungsbereich 13,2 m 29,2 m 0m 10 20 Gemeinde Wolfegg Vorhabenbezogener Bebauungsplan "Oberhof 1, in…  
  44. 2544. 01_2024-04-09_vBPFNPae_Oberhof_1_in_Oppenreute_TOP.pdf  
    Dokumente & PDFs
    Stadtplanung Artenschutz Immissionsschutz Landschaftsplanung N 0m 100 200 Gemeinde Wolfegg Vorhabenbezogener Bebauungsplan "Oberhof 1, in Oppenreute" sowie Änderung des Flächennutzungsplanes…  
  45. 2545. 03_2024-04-09_vBPFNPae_Oberhof_1_in_Oppenreute_FNP.pdf  
    Dokumente & PDFs
    Stadtplanung Artenschutz Immissionsschutz Landschaftsplanung N voraussichtlicher Geltungsbereich 0m 50 100 Gemeinde Wolfegg Vorhabenbezogener Bebauungsplan "Oberhof 1, in Oppenreute" sowie…  
  46. 2546. 2024-04-26_Fachbeitrag_Kiebitz_Vogt_Damooser_Weg.pdf  
    Dokumente & PDFs
    − − − − − − − − − − − − − − N  
  47. 2547. 2024-04-26_SV_SC_BP_Damooserweg-Kuechel_zur_Fsg_2024-02-08_215a.pdf  
    Dokumente & PDFs
    Gemeinde Vogt Bebauungsplan "Damooserweg-Küchel" und die örtlichen Bauvorschriften hierzu Abwägungs- und Beschlussvorlage zur Entwurfsfassung vom 08.02.2024 26.04.2024 Sieber Consult GmbH, Lindau…  
  48. 2548. 2024-04-26_UB_und_EAB_Damooserweg-Kuechel__endg.pdf  
    Dokumente & PDFs
         − − − − − −  − − − − − −  − − − − − − −  − − − − − −  − − − − − − − − − − −  − − − − − − −  − − − − − − − − −  − − …  
  49. 2549. 2024-04-26_PLAN_Damooserweg-Kuechel_Vogt.pdf  
    Dokumente & PDFs
     
  50. 2550. 2024-04-26_TEXT_Damooserweg-Kuechel_Vogt.pdf  
    Dokumente & PDFs
    Entwurf Bebauungsplan "Damooserweg-Küchel" und die örtlichen Bauvorschriften hierzu Gemeinde Vogt Fassung 26.04.2024 Büro Sieber www.buerosieber.de Inhaltsverzeichnis Seite 1 Rechtsgrundlagen …  
  51. 2551. 2024-05-13_3-2_VR2_BP_Damooserweg-Kuechel.pdf  
    Dokumente & PDFs
    Bekanntmachung zur Veröffentlichung im Internet sowie zur öffentlichen Auslegung zum Bebauungsplan "Damooserweg-Küchel" und die örtlichen Bauvorschriften hierzu Der Gemeinderat der Gemeinde Vogt hat…  
  52. 2552. 2024-05-13_Lageplan_3-2_215a_Damooserweg.pdf  
    Dokumente & PDFs
     
  53. 2553. Bürgerinitiativen bleiben im Dialog miteinander  
    Statische Seiten
    Bürgerinitiativen bleiben im Dialog miteinander …  
  54. 2554. Buergerinitiativen_bleiben_im_Dialog_miteinander.pdf  
    Dokumente & PDFs
    Windenergie: Bürgerinitiativen bleiben im Dialog miteinander Am 24.04.2024 hat ein Treffen der Vereine BREMN, Energiewende Vogt und der Waldbesetzung Altdorfer Wald (Alti) – Klimacamp in Wolfegg…  
  55. 2555. 2024-04-08_Bkmg_3-1_FNPae_Oberhof_1_Lageplan.pdf  
    Dokumente & PDFs
     
  56. 2556. doc01858320240505102243.pdf  
    Dokumente & PDFs
     
  57. 2557. 2024_Mitteilungsblatt_KW17.pdf  
    Dokumente & PDFs
    66. Jahrgang Donnerstag, 25. April 2024 Nummer 17 Maibaumstellen 2024 Dienstag, 30.04. ab 16 00 Uhr Ausschank und Wurst vom Grill auf dem Le Mayet Platz ab 1800 Uhr Musikalische Unterhaltung…  
  58. 2558. Infoboxen  
    Statische Seiten
    Apotheken-Notdienst Landesapothekenkammer BW Tagesaktuelle Notdienste von Apotheken in Ihrer Nähe. Weiter zur Homepage "Landesapothekenkammer BW" Laborlexikon Wollen Sie wissen, ob Ihre…  
  59. 2559. Kulturelle Einrichtungen  
    Statische Seiten
    Kontakt & Infos Sirgensteinhalle In Vogt wohnen, leben, arbeiten und wohlfühlen - ein weiteres Steinchen hat sich  durch die Sirgensteinhalle in das kommunale Mosaik eingefügt. Die…  
  60. 2560. Friedhof  
    Statische Seiten
    Friedhof Ratgeber für Sterbefall und Bestattung  
  61. 2561. Druckvorlage_Rat.pdf  
    Dokumente & PDFs
    Ratgeber für Sterbefall und Bestattung Einen Menschen zu verlieren, der Teil Ihres Lebens war, ist schmerzlich und löst Betroffenheit aus. Es gibt viele Dinge zu erledigen und Entscheidungen sind zu…  
  62. 2562. 2024_Mitteilungsblatt_KW16.pdf  
    Dokumente & PDFs
    66. Jahrgang Donnerstag, 18. April 2024 Nummer 16 Mitteilungsblatt Vogt Amtliche Bekanntmachungen Einladung zur öffentlichen Sitzung des gemeinsamen Ausschusses der vereinbarten…  
  63. 2563. 2024_Mitteilungsblatt_KW15.pdf  
    Dokumente & PDFs
    66. Jahrgang Donnerstag, 11. April 2024 Nummer 15 Mitteilungsblatt Vogt 2 Nr. 15 vom 11. April 2024 Musik Querbeet Freitag, 19.04.2024 20:00 Uhr im kath. Gemeindehaus in Vogt Eintritt: 8,00…  
  64. 2564. Landesgartenschau 2024  
    Statische Seiten
    Landesgartenschau in Wangen im Allgäu Ab dem 26. April 2024 findet die Landesgartenschau in Wangen im Allgäu statt. Im Zeitraum vom 26. April bis zum 6. Oktober 2024 kann diese täglich besucht…  
  65. 2565. Feuerwehr  
    Statische Seiten
    Freiwillige Feuerwehr der Gemeinde Vogt Nelkenweg 13 88267 Vogt Weiter zur Homepage Kommandant Florian Heine Reckendürren 1, 88267 Vogt Mobil: 0176 - 81126163 Email:…  
  66. 2566. 2024_Mitteilungsblatt_KW14.pdf  
    Dokumente & PDFs
    66. Jahrgang Donnerstag, 4. April 2024 Nummer 14 Amtliche Bekanntmachungen Einladung zur öffentlichen Sitzung des Gemeindewahlausschusses am Montag, 08. April 2024 um 19:00 Uhr, im Sitzungssaal…  
  67. 2567. Öffentliche Ausschreibungen  
    Statische Seiten
    Öffentliche Ausschreibungen Volllausbau Lerchenweg in Vogt - Ausschreibung von Erd-, kanal-, Wasserleitungs- und Straßenbauarbeiten  
  68. 2568. Anzeigentext_Staatzsanzeiger_VOGT.pdf  
    Dokumente & PDFs
    Gemeinde Vogt Kreis Ravensburg Öffentliche Ausschreibung Die Gemeinde Vogt schreibt auf der Grundlage der VOB die nachfolgenden Arbeiten öffentlich aus: Vollausbau Lerchenweg in Vogt Ausschreibung…  
  69. 2569. Entwässerungsantrag  
    Statische Seiten
    Entwässerungsantrag  
  70. 2570. Entwaesserungsantrag_-_neu.pdf  
    Dokumente & PDFs
    Entwässerungsantrag 1 von 4 Gemeinde Vogt Kirchstraße 11 88267 Vogt Eingangsvermerk der Gemeinde Vogt: 1. Grundstückseigentümer/in (Antragssteller/in) Name, Vorname: Straße, Hausnummer:…  
  71. 2571. 2024_Mitteilungsblatt_KW13.pdf  
    Dokumente & PDFs
    66. Jahrgang Donnerstag, 28. März 2024 Frohe Ostern „Tun wir es der Natur gleich und stehen immer wieder auf, in der Aufgabe, das Gute zum Blühen zu bringe.“ - Beate Jan – Der Gemeinderat, der…  
  72. 2572. Zustimmungserklaerung_fuer_Kinder.pdf  
    Dokumente & PDFs
     
  73. 2573. 03_Inforeihe_Energiedialog-AdW_WAW_240123_187x256_web.pdf  
    Dokumente & PDFs
    Kommunaler Energiedialog zum geplanten Windpark im Altdorfer Wald Thema 3 | Vorstellung Projektiererin Der Windpark im Altdorfer Wald wird von der Projektgesellschaft Windpark Altdorfer Wald GmbH…  
  74. 2574. 04_Inforeihe_AdW_VA-Bericht-Januar2024_FED_240311_187x256_fuerWeb.pdf  
    Dokumente & PDFs
    Kommunaler Energiedialog zum geplanten Windpark im Altdorfer Wald Thema 4 | Veranstaltungsbericht 18.01.2024 Warum Windräder in Oberschwaben? Diese Frage wurde am 18. Januar 2024 in Baienfurt…  
  75. 2575. 2023-12-15_Bkmg_SB_BPae_Hoeferwiesen_Vogt.pdf  
    Dokumente & PDFs
    Bekanntmachung des Satzungsbeschlusses zur 2. Änderung des Bebauungsplanes "Höferwiesen Nord" und die örtlichen Bauvorschriften hierzu Der Gemeinderat der Gemeinde Vogt hat am 13.12.2023 für das…  
  76. 2576. doc01719220240404104840.pdf  
    Dokumente & PDFs
     
  77. 2577. 2024_Mitteilungsblatt_KW12.pdf  
    Dokumente & PDFs
    66. Jahrgang Donnerstag, 21. März 2024 Informationsreihe zu Windenergie Thema 4 | Veranstaltungsbericht „Warum Windenergie in Oberschwaben?“ Jetzt im Innenteil lesen. Nummer 12 …  
  78. 2578. Problemstoffsammlung_2024.pdf  
    Dokumente & PDFs
    WAS SIND PROBLEMSTOFFE? KONTAKT Was wird angenommen (Beispiele): Informationen für Haushalte und Kleingewerbe: Kostenfreie Abgabe in haushaltsüblichen Mengen. Telefon 0751 85-2345…  
  79. 2579. Bedarfsabfrage_GMS_Kl_5_Schuljahr_2024_2025.pdf  
    Dokumente & PDFs
    Schülerbetreuung für Schüler der Gemeinschaftsschule (GMS) Waldburg-Vogt, Klasse 5 An uns wurde der Wunsch herangetragen, Mittwochnachmittag und in den Randzeiten auch für die Klasse 5 ein…  
  80. 2580. Infos_zu_den_Kommunalwahlen_-_Flyer.pdf  
    Dokumente & PDFs
    SPEZIAL 2024 – Wählen gehen! INFOS ZU DEN KOMMUNALWAHLEN Sonntag, 9. Juni 2024 FÜR DAS KENNZEICHNEN DER BEWERBERINNEN UND BEWERBER GILT: ■ s gilt die sogenannte positive…  
  81. 2581. SC VOGT e.V., Abteilung Volleyball  
    Geodaten & Objekte
    SC VOGT e.V., Abteilung Volleyball

    Vorstand: Birgit Ludwig

     
  82. 2582. 2024_Mitteilungsblatt_KW10.pdf  
    Dokumente & PDFs
    66. Jahrgang Donnerstag, 7. März 2024 Nummer 10 Mitteilungsblatt Vogt Amtliche Bekanntmachungen Einladung zur öffentlichen Sitzung des Technischen Ausschusses am Mittwoch, 13. März 2024 um…  
  83. 2583. FNP_AEnderung_PVMooswiese1a.pdf  
    Dokumente & PDFs
    Vereinbarte Verwaltungsgemeinschaft Vogt / Wolfegg Änderung des Flächennutzungsplanes der vereinbarten Verwaltungsgemeinschaft „Vogt / Wolfegg“ Sondergebiet für den Vorhabenbezogenen Bebauungsplan…  
  84. 2584. Bedarfsabfrage_GS_Schuljahr_2024_2025.pdf  
    Dokumente & PDFs
    Flexible Nachmittagsbetreuung und Verlässliche Grundschule (Kernzeitbetreuung) für das Schuljahr 2024/2025 an der Grundschule Vogt Nachstehendes Betreuungsangebot „verlässliche Grundschule…  
  85. 2585. Fußverkehrs-Check 2024  
    Statische Seiten
    Fußverkehrs-Check 2024 Abschlussbericht Fußverkehrs-Check 2024  
  86. 2586. Abschlussbericht_FVC2023_Vogt.pdf  
    Dokumente & PDFs
    Abschlussbericht Vogt Fußverkehrs-Checks BW 2023 Ideen für attraktive Stadtzentren Karlsruhe, im Februar 2024 www.planersocietaet.de Seite 2 von 59 Fußverkehrs-Checks BW 2023 – Abschlussbericht…  
  87. 2587. Weitere Informationen  
    Statische Seiten
    Robby Dog-Stationen in und um Vogt Standorte der Hundetoiletten Weitere Informationen Informationen zur Einführung der Gelben Tonne im Landkreis Ravensburg zum 01.01.2022 finden Sie HIER …  
  88. 2588. Robby_Dog_Stationen_Vogt.pdf  
    Dokumente & PDFs
    Robby Dog-Stationen  
  89. 2589. Bekanntmachung_Aufstellungs-_und_Entwurfsbilligungsbeschluss.pdf  
    Dokumente & PDFs
    Öffentliche Bekanntmachung Bekanntmachung des Änderungsbeschlusses sowie über den Billigungsbeschluss und die Beteiligung der Öffentlichkeit nach § 3 Absatz 2 Baugesetzbuch zur beabsichtigten…  
  90. 2590. Urlaubszeit = Reisezeit  
    News & Veranstaltungen
    Urlaubszeit = Reisezeit

     Bitte achten Sie auf die Ablaufdaten Ihrer Personalausweise sowie Reisepässe und kommen Sie frühzeitig zur Neubeantragung zu uns ins Rathaus. Personalausweise…
     
  91. 2591. Fischereiverein Mosisgreut e.V.  
    Geodaten & Objekte
    Fischereiverein Mosisgreut e.V.

    Vorstand: Alexander Kihn

    Angeln

     
  92. 2592. 2024-02-23_Bkmg_3-2_215a_Damooserweg.pdf  
    Dokumente & PDFs
    Bekanntmachung zur öffentlichen Auslegung zum Bebauungsplan "Damooserweg-Küchel" und die örtlichen Bauvorschriften hierzu Der Gemeinderat der Gemeinde Vogt hat in seiner öffentlichen Sitzung am…  
  93. 2593. 2024-02-23_Lageplan_3-2_215a_Damooserweg.pdf  
    Dokumente & PDFs
     
  94. 2594. Umweltbericht_Mooswiese_Entwurf.pdf  
    Dokumente & PDFs
    Umweltbericht mit Grünordnung und EingriffsAusgleichsbilanzierung nach den Forderungen des BauGB Projekt : Vorhabenbezogener Bebauungsplan „PV Freiflächenanlage Mooswiese-Hankel“ Gemeinde Vogt…  
  95. 2595. Bebauungsplan_Entwurf1.pdf  
    Dokumente & PDFs
     
  96. 2596. VEP_Mooswiese_Entwurf1.pdf  
    Dokumente & PDFs
    VORHABENBEZOGENER BEBAUUNGSPLAN UND DER DAZUGEHÖRIGEN ÖRTLICHEN BAUVORSCHRIFTEN VEP “PV Freiflächenanlage Mooswiese-Hankel“ Projekt : Vorhabenbezogener Bebauungsplan und der dazugehörigen örtlichen…  
  97. 2597. A4-Lageplan_2500.pdf  
    Dokumente & PDFs
     
  98. 2598. Artenschutzrechtlicher_Kurzbericht.pdf  
    Dokumente & PDFs
    Gemeinde Vogt Bebauungsplan "Damooserweg-Küchel" Büro Sieber, Lindau (B) Datum: 20.08.2019 Artenschutzrechtlicher Kurzbericht 1. Allgemeines 1.1 Die Gemeinde Vogt beabsichtigt für den Bereich…  
  99. 2599. Geruchsgutachten_Geruchshaeufigkeit.pdf  
    Dokumente & PDFs
     
  100. 2600. Geruchsgutachten.pdf  
    Dokumente & PDFs
    iMA Richter & Röckle Immissionen Meteorologie Akustik Messstelle § 29b BImSchG Auftraggeber: Büro Sieber Am Schönbühl 1 88131 Lindau Ergebnisbericht, Stand 27.09.2016 Prognose der…  
Suchergebnisse 2501 bis 2600 von 3131